top of page
Suche


Umbau und Sanierung Familien Hotel Gorfion Malbun
Sanierung Familienhotel,
Terminsteuerung und Termincontrolling über die Ganze Sanierung, damit die Termineinhaltung sicher gestellt ist.
iP
18. Apr. 20171 Min. Lesezeit


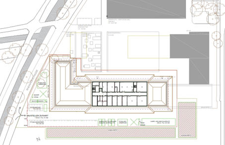
Spatenstich für Penergetic Generationenbau
Baumanagement und Bauleitungsleistungen für den Gewerbeneubau mit Produktions- Gewerbe- und Büroflächen
iP
20. Jan. 20171 Min. Lesezeit


Neubau Penergetic International AG
Zur Freude aller Projektbeteiligten ist heute die Baubewilligung für den Gewerbeneubau der Penergetic International AG in Romanshorn eingega
iP
11. Jan. 20171 Min. Lesezeit


Grundsteinlegung landwirtschaftliches Zentrum Kanton St.Gallen, Salez
Im Beisein von Vertretungen des Bau-, des Volkswirtschafts- und des Bildungsdepartementes wurde heute der Grundstein für den Ersatzneubbau d
iP
9. Nov. 20162 Min. Lesezeit


Start Rückbauarbeiten Penergetic AG
Die Rückbauarbeiten der Bestandesbauten haben begonnen. Aktuell werden die Altlastensanierungsarbeiten durch Spezialisten durchgeführt,...
iP
2. Nov. 20161 Min. Lesezeit


Start Pfählungsarbeiten
Die Pfählungsarbeiten konnten nach der Sommerpause plangemäss starten. Es werden rund 270 Betonrammpfähle, mit einer Gesamtlänge von...
Isepponi Patrick
10. Aug. 20161 Min. Lesezeit


LZSG Salez, die Arbeiten starten ...
Am Donnerstagmorgen 23.06.2016 um 07:30 Uhr haben die Arbeiten zur Erstellung der Baustellen Zufahrt, Plätze und Lagerflächen begonnen....
Isepponi Patrick
23. Juni 20161 Min. Lesezeit


LZSG Salez, Vorarbeiten zum Baustart
Die Vorarbeiten zum Baustart laufen und die Unternehmer stehen bereit. Nur das Wetter lässt uns nicht beginnen! Durch die anhaltenden ...
Isepponi Patrick
8. Juni 20161 Min. Lesezeit


Firmenlogo iP baumanagement
iP baumanagement | Ob Rückbau, Umbau, Sanierung oder Neubau: Wir bringen Ihr Bauprojekt auf Kurs.
iP
13. Mai 20161 Min. Lesezeit


LZSG Salez, Baubeginn Schule + Internat
Der Baubeginn für den Teilabbruch und Ersatzneubau beim landwirtschaftlichen Zentrum SG in Salez ist auf den Montag 25.04.2016 angesetzt....
Isepponi Patrick
23. März 20161 Min. Lesezeit


Neutrik AG, Schaan: integraler Test
Bauleitung Hochregallager, Prototyp aus Holz
Isepponi Patrick
4. März 20161 Min. Lesezeit


Eröffnung Neubau NTB Labor II
Ausschreibung, Terminplanung und Bauleitung für die interstaatliche Hochschule NTB / neues Technikum Buchs
Isepponi Patrick
20. Jan. 20161 Min. Lesezeit


Firmenjubiläum 2016
iP baumanagement | Architektur, Bauplanung, Bauleitung und Projektleitung
iP
16. Jan. 20161 Min. Lesezeit


Weihnachten / Neujahr
Unser Büro bleibt über die Weihnachtsferien ab dem Donnerstag 24.12.2015 bis und mit dem Freitag 08.01.2016 geschlossen. Ab dem Montag...
Isepponi Patrick
7. Dez. 20151 Min. Lesezeit


Einweihung Neubauten Neutrik AG
Bauleitung, Qualitätssicherung, Termine und Koordination Arbeiten
Isepponi Patrick
30. Nov. 20151 Min. Lesezeit


Handel und Gewerbebau
Planung Steuerung Koordination und Bauleitung für Handel- Gewerbe- und Industriebauten | iP baumanagement
iP
2. Jan. 20141 Min. Lesezeit


BAUMANAGEMENT
Baumanagment und Projektmanagement | zielführend kostenbewusst und kompetent
Isepponi Patrick
1. Jan. 20141 Min. Lesezeit


BAULEITUNG
Bauleitung Kostenplanung Terminplanung Ausschreibung Vergabe Qualitätssicherung und Koordination der Planung und Realisierungsphase
Isepponi Patrick
1. Jan. 20141 Min. Lesezeit


PROJEKTLEITUNG BAUHERR
Projektleitung Bauherr
Bauherrenvertretung
Bauherrenbegleitung
Bauherrenberatung
Projektleitung Bau
Qualitätssicherung
Isepponi Patrick
1. Jan. 20141 Min. Lesezeit


Bauherrenberatung und Bauherrenvertretung
Wir beraten und vertreten Bauherren in sämtlichen Belangen im Bereich Neubau, Sanierung, Umbau, Erneuerung, Erhalt und Renovation.
Isepponi Patrick
30. Dez. 20131 Min. Lesezeit
bottom of page